为包管矿井的正常生产秩序,实现稳定可连续生长,形成管控有力度、督办有效率、应对有实策的治理模式,经公司领导研究决定,对相关作业点运输设备和支护设计进行优化,从源头提升单进水平攻坚目标。
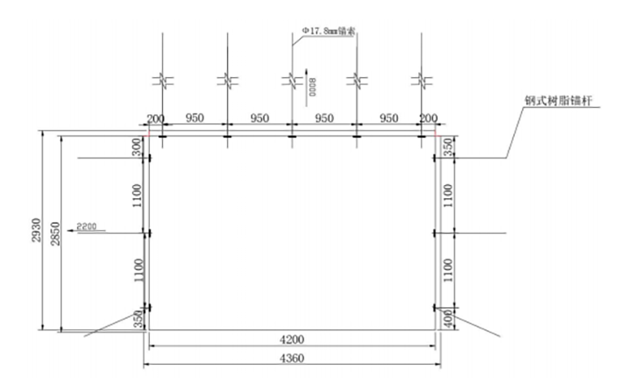
经过对掘进设备、作业流程进行梳理,一是在+1940m水平北翼中II采区N1401事情面回风巷掘进迎头综掘机上装置自制前探梁,缩短临时支护时间,杜绝空顶作业,为宁静生产提供了包管;二是综掘机配合自移机尾使用,首先减少伸、缩刮板输送机环节,降低作业时间;三是结合湖南科技大学提供的《软岩支护研究》结果及现场顶板围岩实际情况,优化掘进巷道支护设计来减少施工锚索、锚杆数量,由原来顶梁7个孔,帮梁5个孔,优化至5个孔和3个孔,优化支护设计,提高了单进,每班掘进进尺可完成2排(m),每天完成6m,每月计划可完成180m,每月可完成掘进进尺150m。
通过对运输设备的革新和支护设计的优化,为公司掘进作业赢得了名贵的时间与稳固的支护包管,构筑起井下作业情况的宁静防地。这一厘革不但让事情效率跃上新台阶,更让职工的劳动强度大幅减轻,实现了宁静与效率的双赢。

报送单位:恩洪煤业公司
作者:史双侠